Mansion Hills- Highlands Ranch CO

Reimagining Life at Mansion Hills, Highlands Ranch, CO

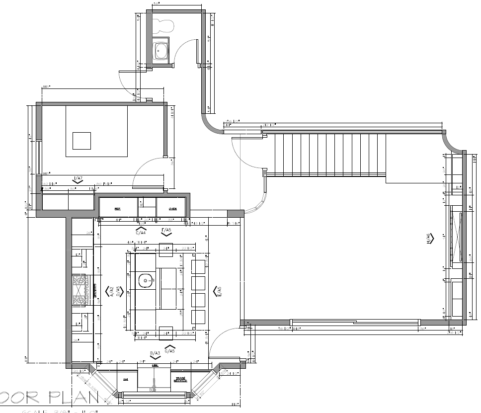
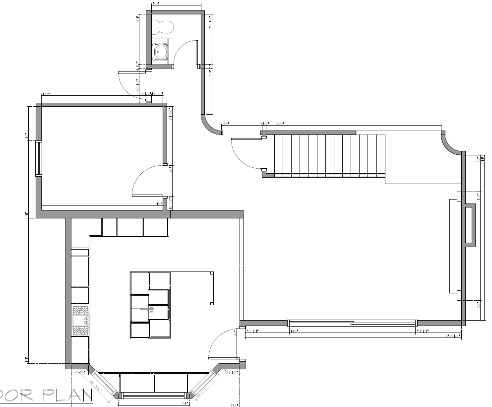
We’re thrilled to announce our latest project: a transformative kitchen remodel in the picturesque Mansion Hills neighborhood of Highlands Ranch, Colorado. This renovation is all about redefining how our clients cook, entertain, and enjoy their space—combining luxury with everyday functionality.

Our expert team is reconfiguring the kitchen layout to optimize flow throughout the home. We’re maximizing storage and countertop areas to enhance both organization and convenience, and introducing a custom panel-ready refrigerator seamlessly integrated into the design. A stunning, oversized armoire will conceal a dedicated coffee bar, stylish beverage station, and highly practical pull-out pantry—elevating both aesthetics and usability. One of the remodel’s highlights is a newly expanded island, designed to comfortably seat six. It transforms the kitchen into a true gathering place for family and friends.

But we’re not stopping there! The family room will also feature beautiful new built-in cabinetry, an impressive floor-to-ceiling stone fireplace wall, and elegant new furniture, all meticulously coordinated to create a welcoming atmosphere. From inspired planning to flawless execution, this sweeping remodel is set to turn a dated space into a modern sanctuary—where luxury meets daily living. We can’t wait to reveal the full transformation! Coming Summer of 2026.

Previous
Previous

Heritage Hills Bathroom Project

Next
Next

Saddle Rock Ranches