"WE ARE SO EXCITED, I CANT BELIEVE I GET TO LIVE HERE”.
When a client say, “We are so excited, I cant believe I get to live here”. Nothing as amazing than to hear our clients are totally hyped up about their new kitchen that is in the works and will be finished Fall 2023.
We love creating amazing spaces but also sharing the vision of the project before it is even brought to life. We are thrilled to share some images of an upcoming remodel in Parker, CO!
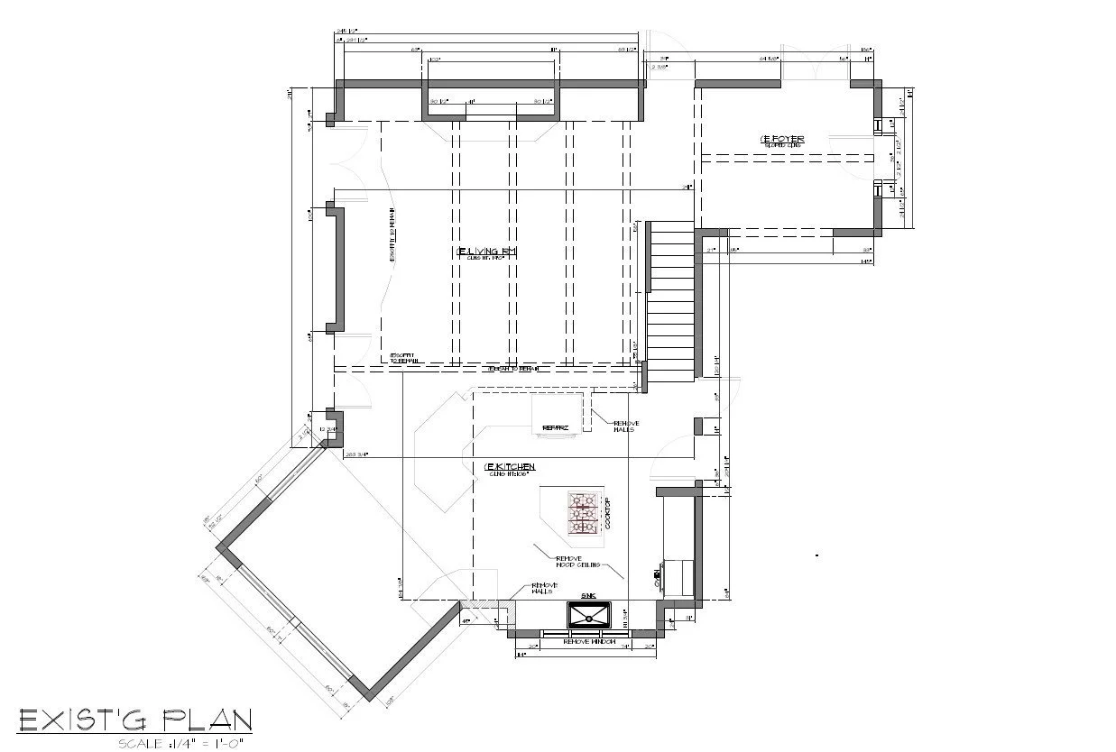
We started this design that modified the floor plan slightly but reconfiguring the space. Then we shared the vision of a small addition and how it would changing the cook wall. The client was so blown away by the possible change that they decided the addition was a must have. As you can see below this kitchen is going to make a huge transition to this whole floor.
Designing your custom kitchen is the first step in transforming your home. The kitchen sets the tone and style for the spaces, and is the focal point of every home. Scroll to the end to see how this thoughtfully designed kitchen will transform this home. More to come to Parker Fall 2023!!
BEFORE PHOTOS BELOW.
 
                         
             
             
             
             
             
             
             
                 
                 
                 
                 
                 
                 
                